• Home
  • Projects
  • News + Links
  • About
  • Contact

Small Lot Subdivision, Los Angeles

  • Images
  • About the Project
  • Project Documents

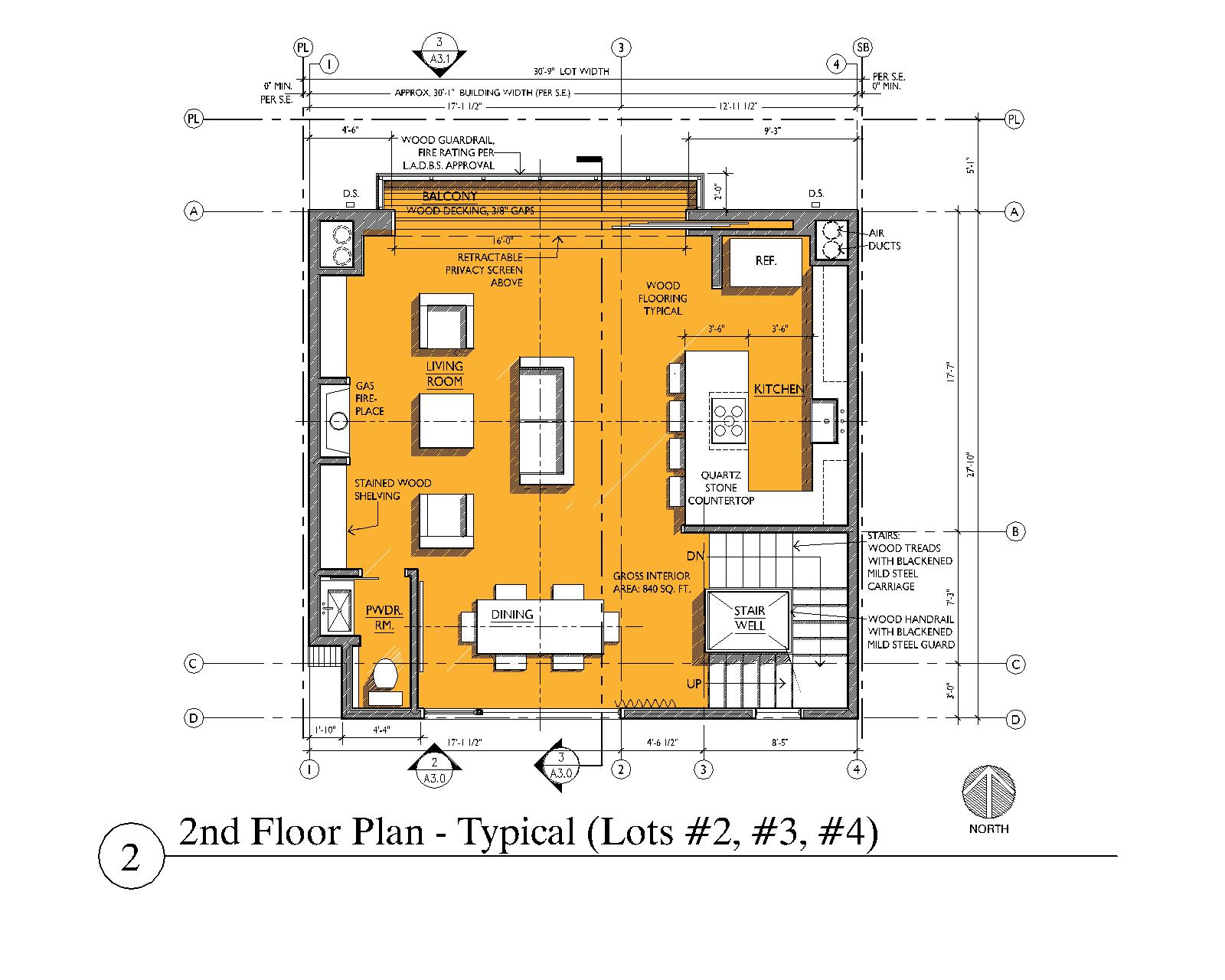
4 Townhomes, vetically split: 3 stories, 1900 sf, 2 car garage, Good views of Griffith Observatory. High Ceilings. The success of this project is a spacious modern livable feeling, even though on compact lots. This is due to a optimizing the lot configuration, use of the adjacent historic 4-story brick wall, careful consideration of views, and dramatic sense of verticality given by the windowed 3-story staircase. Quality finishes, a well thought through floorplan, and nice site work bring the project from a renter's quality aesthetic to owner's quality aesthetic. The careful and comprehensive construction detailing by the architect may not be noticed directly by the end-user, but rather the sense of simple modern elegance will be felt.

  • Design: 2012
  • Ground Breaking: 2014
  • Completion: 2016
  • Location: 1841 Alexandria, Los Angeles (Los Feliz)
  • Architecture: David Crimmins, Crimmins-Design
  • Interior Designer: Marcela Botero
  • Landscape: Ahbe
  • Builder: Jeff Donavan








  • enter password... ...then CLICK HERE